Dlažba pre rodinné domy
Seka
|
Elegancia včelieho tvaru s rozmanitou pestrofarebnosťou, veľká výzva pre tvorivých dizajnérov.
Tvorba piktogramov a tých najvariabilnejších vizuálnych symbolov. Jedinečnosť pestrých kombinácii žlto-červeno-hnedej v podobe zámkovej dlažby SEKA MIX a bežných farieb ako je sivá a červená.
Tradičná krása dlažby
Zámková dlažba vhodná najmä na dláždenie peších zón, oddychových priestorov, parkov a terás, chodníkov, dráh pre cyklistov, záhradných ciest.
Zaťažiteľnosť dlažby
-
hrúbka 6 cm - osobná doprava
-
univerzálnosť použitia a hospodárnosť
-
systém vymedzovacích výčnelkov
-
univerzálnosť použitia
-
odolnosť proti pošmyknutiu a univerzálnosť
-
systém doplnený koncovými tvarovkami
|
 |
Technické informácie
Povrch: štandart
Štruktúra: dvojvrstvová
Hrúbka dlažby: 6 cm
Hmotnosť: 145 kg/m2
|
Hrúbka dlažby 6 cm |
normál 23,1 x 20 cm |
polovička 23,1 x 10 cm |
|
Hmotnosť kg/paleta |
1270 |
1270 |
|
Spotreba ks/m2 |
28,87 |
57,74 |
|
Množstvo m2/paleta |
9,01 |
9,01 |
Dlažba Seka sa dodáva na kombinovaných paletách, nomál a 1/2.
|
|
|
 |
 |
|
sivá |
mix (alto-červeno-hnedá) |
|
dlažba Seka - normál
|
dlažba Seka - mix
|
 |
rozmer: 23,1 x 20 cm
výška: 6 cm
spotreba: 28,87 ks/m2
hmotnosť: 145 kg/m2
farebnosť: sivá, mix
bližší popis: dodávané 8,66 m2/pal |
 |
farebnosť: žlto / červeno / hnedá kombinácia |
|
dlažba Seka - polovička
|
|
|
 |
rozmer: 23,1 x 10 cm
výška: 6 cm
spotreba: 57,74 ks/m2
hmotnosť: 145 kg/m2
farebnosť: sivá, mix
bližší popis: dodávané 0,35 m2/pal |
|
|
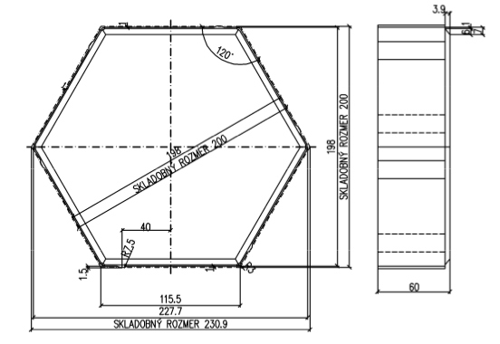
Výrobné rozmery zámkovej dlažby Seka:
 |
 |
|
dlažba Graniko 14/14 |
dlažba Graniko 14/21 |
Spôsob kladenia dlažby
Pri pokládke zámkovej dlažby Seka je potrebné dodržať pozdĺžny a priečny sklon dlažby! Výška musí byť taká, aby tvarovky po uložení boli 1 cm vyššie ako požadovaná výška plochy, pretože lôžko sa pri vibrovaní zmenší o výšku 1 cm.
Naše typy uloženia dlažby Seka pre Vás:
|
|
|
|
|
SEK-ob01 6ks - normál odlišnej farby 0,6 x 0,58 m |
SEK-ob02 13 ks - normál odlišnej farby 1,00 x 0,92 m |
SEK-ob03 24 ks - normál odlišnej farby 1,40 x 1,27 m |
SEK-ob04 37 ks - normál odlišnej farby 1,8 x 1,62 m |
|
|
|
|
|
SEK-ob05 60 ks - normál odlišnej farby 3,00 x 2,66 m |
SEK-ob06 78 ks - normál odlišnej farby 3,00 x 2,66 m |
SEK-ob07 78 ks - normál odlišnej farby 3,35 x 3,00 m |
SEK-ob08 96 ks - normál odlišnej farby 3,35 x 3,00 m |
|
|
|
|
|
SEK-ob09 73 ks - normál odlišnej farby 3,35 x 3,20 m |
SEK-ob10 91 ks - normál odlišnej farby 3,35 x 3,2 m |
SEK-ob11 109 ks - noemál odlišnej farby 3,35 x 3,2 m |
SEK-ob12 121 ks - normál odlišnej farby 3,35 x 3,2 m |
|
|
|
|
|
SEK-ob13 100 ks - normál odlišnej farby 4,04 x 3,7 m |
SEK-ob14 85 ks - normál odlišnej farby 3,35 x 3,8 m |
SEK-ob15 145 ks - normál odlišnej farby 3,7 x 3,6 m |
SEK-ob16 169 ks - normál odlišnej farby 4,2 x 3,7 m |
 |
|
|
|
|
SEK-ob17 211 ks - normál odlišnej farby 4,04 x 4,6 m |
SEK-ob18 133 ks - normál odlišnej farby 4,2 x 4,73 m |
|
|
Pokládka dlažieb a príklady riešenia chodníkov
Zámková dlažba a pokládka na rôzne uhly zalomenia. Okraje sa riešia buď pomocou tvaroviek jeden a pol, alebo rozpolením tvaroviek normál.
Dlažba na schody
Schody vytvoríme použitím: tvarovky SEKA jeden a pol + cestný obrubník. Okrajové tvarovky sa musia zrezať.

Na stiahnutie
Realizácie
Ďalšie produkty: